Retour à la liste

CONDAMINE | PETREL | 3 PIECES

Port / Le Petrel

contacter l'agence Monaco Properties

Vente

réf VM0822-31_251203-113

Caractéristiques

Prix de vente4 500 000 €

Type de bienAppartement

Nb de pièces3

Chambre(s)2

Salle(s) de bain2

Superf. totale95 m²

Étage2

Télécharger en PDF

Description

Un bel appartement de 3 pièces à usage mixte (habitation ou bureau), situé au 1er étage (hauteur d’un 2ème niveau) de l’immeuble « Le Petrel », résidence moderne avec ascenseur, idéalement positionné sur l’unique rue piétonne de la Principauté.
Lumineux, épuré, délicat - à quelques pas du Port Hercules, cet appartement a été entièrement rénové en utilisant des matériaux haut de gamme et un soin particulier des finitions.
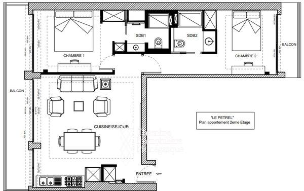
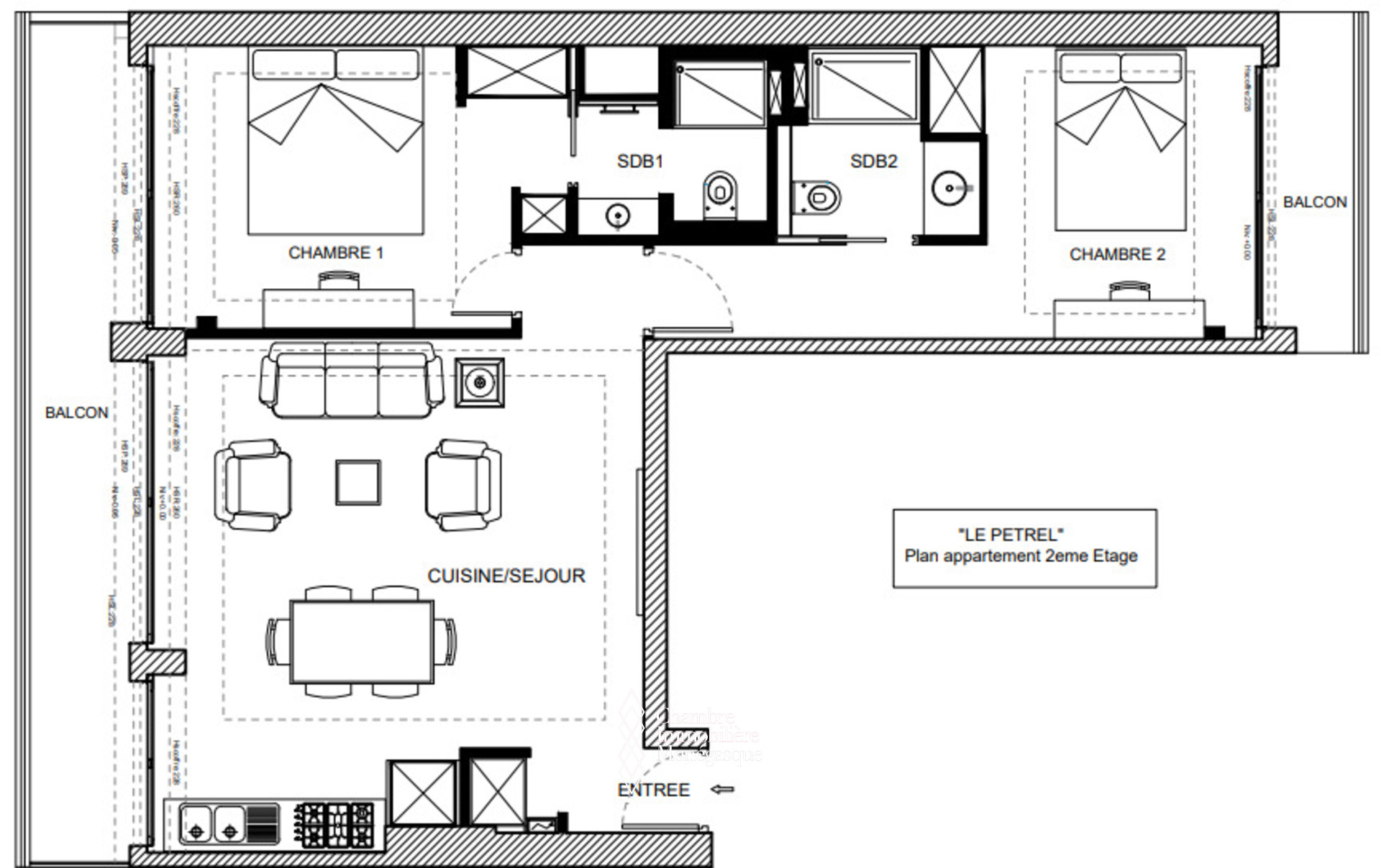
Il se compose d’un hall d’entrée, d’un salon et cuisine ouverte, avec terrasse, et de deux chambres et deux salles de bain avec terrasses également. 

Monaco Properties

T. +377 97 97 33 97 info@mpmonaco.com https://www.monacoproperties.mc Voir tous les biens

Galerie Photos

Ce document ne fait partie d'aucune offre ou contrat. Toutes mesures, surfaces et distances sont approximatives. Le descriptif et les plans ne sont donnés qu'à titre indicatif et leur exactitude n'est pas garantie. Les photographies ne montrent que certaines parties de la propriété. L'offre est valable sauf en cas de vente, retrait de vente, changement de prix ou d'autres conditions, sans préalable.